Casa construída ao redor de carvalho centenário
Onde: • 19 de Julho - 2024 |Localizado em Martínez, Argentina, o projeto arquitetônico gira em torno de um majestoso carvalho centenário. A árvore, situada no centro do terreno, que poderia ser um problema no desenvolvimento da casa, acabou tornando-se o elemento de destaque, gerando uma conexão harmoniosa com o carvalho e a luz natural
A fachada voltada para o norte, onde os proprietários buscavam máxima privacidade, levou a uma orientação complexa do terreno. No entanto, essa complexidade desencadeou uma solução criativa, pois a equipe de design aproveitou a oportunidade para explorar a dinâmica da luz e sua relação com o ciclo solar.
O verdadeiro desafio, entretanto, estava em estabelecer uma conexão significativa com o venerável carvalho. Deveria ser contemplado, admirado ou explorado? E, se sim, de que ângulo? Após uma análise extensa, a equipe de arquitetura do Atelier M, liderada por Matias Mosquera, concluiu que a ligação com o carvalho se manifestaria de várias maneiras, apresentando uma rica gama de oportunidades a serem exploradas.
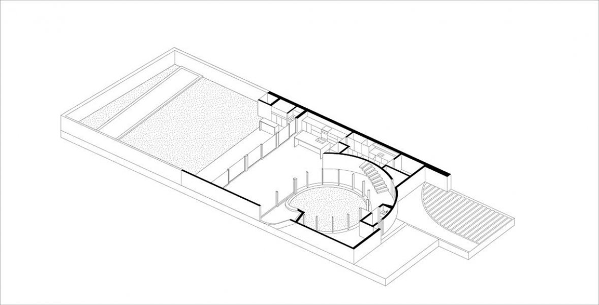
Uma Fachada Cega e um Pátio Circular
Ao se aproximar da casa pela rua, encontra-se uma fachada cega, com o terreno inclinado configurado no telhado. Do centro dele, o imponente carvalho surge majestosamente, desafiando a lógica convencional. Ao cruzar o limiar da porta de entrada, um pátio circular é revelado, com o carvalho no centro, gerando uma atmosfera de contemplação excitante.

A arquitetura revela uma rota, uma viga que se origina no térreo e envolve o carvalho do nível zero, ascendendo até alcançar o segundo nível e configurando uma espiral harmoniosa ao seu redor. A luz, sempre entrando deste ponto cardinal, favorece a dança das folhas do carvalho, permitindo a entrada de mais luz durante o inverno e protegendo o interior nos dias quentes de verão.
Uma Vista Panorâmica Para um Horizonte Distante
Como culminação desta experiência, propõe-se uma rota que começa na sala de estar da casa e, evitando o primeiro andar (que corresponde à área privada da casa), culmina em um jardim localizado no topo do vidro do carvalho, oferecendo uma vista panorâmica para um horizonte distante.

LuMa é um testemunho do poder da arquitetura de harmonizar-se com a natureza, criando um espaço de vida único e deslumbrante que celebra a beleza do antigo carvalho. Assim como o poema To the Oak, por Alfred Tennyson reproduzido abaixo em inglês, seguido de tradução livre.
"Live thy Life,
Young and old,
Like yon oak,
Bright in spring,
Living gold;
Summer-rich
Then; and then
Autumn-changed
Soberer-hued
Gold again.
All his leaves
Fall’n at length,
Look, he stands,
Trunk and bough
Naked strength.”
*"Viva sua vida,
Jovem e velho,
Como aquele carvalho,
Brilhante na primavera,
Ouro vivo;
Rico no verão,
E então,
Mudado no outono,
De cor mais sóbria,
Ouro novamente.
Todas as suas folhas
Caíram ao final,
Veja, ele permanece,
Tronco e galho,
Força desnuda."
*Essa tradução mantém a essência e o espírito do poema original, refletindo a força e a resiliência do carvalho através das estações.







Detalhes do Projeto
- Localização: Córdoba, Província de Buenos Aires, Argentina
- Tamanho do Projeto: 210 m²
- Tamanho do Lote: 450 m²
- Níveis de Construção: 2
- Equipes do Projeto: AtelierM
- Data de Conclusão: Janeiro de 2024
Serviço
AtelierM
Buenos Aires, Argentina
atelierm.ar
